AFFITTO TURISTICO: bilocale in Via Matteotti, Sanremo

AFFITTO TURISTICO: bilocale in Via Matteotti, Sanremo

Descrizione

Ampio bilocale nel cuore di Sanremo.

Proponiamo in affitto turistico transitorio breve un ampio e luminoso bilocale situato in via Matteotti, nel pieno centro di Sanremo.
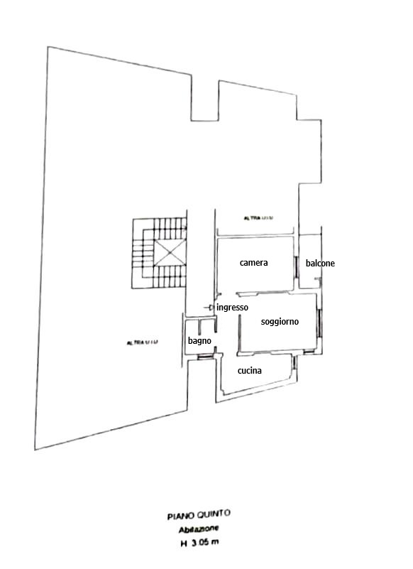
L’appartamento si trova al 5° piano: si accede percorrendo due rampe di scale e successivamente l’ascensore che porta al quinto piano.

Superficie di 52 mq, distribuita in modo pratico e funzionale:
– Ingresso su soggiorno
– Camera matrimoniale con balcone
– Cucina semi-abitabile
– Bagno finestrato con box doccia.

Caratteristiche principali:
– Riscaldamento autonomo con radiatori
– Aria condizionata canalizzata
– Wi‑Fi fisso

L’appartamento è semplice ma dotato di tutte le comodità necessarie per un soggiorno piacevole e senza pensieri.

Posizione.
La posizione è davvero strategica: a due passi dal mare, dal Casino, dal mercato centrale, dalla Chiesa Russa, da Corso Imperatrice, dalla stazione degli autobus e da tutti i principali servizi.
Un punto di partenza ideale per vivere Sanremo in totale comodità.

Prezzo a partire da 100 € a notte, variabile in base al periodo, alla durata del soggiorno e al numero degli ospiti.

Venite a scoprire questa calorosa casa nel cuore della città: vi regalerà una vacanza comoda, centrale e accogliente.

Per informazioni, disponibilità e preventivi, contattare l’agenzia.

Condividi questo immobile

Dettagli

Aggiornato il Febbraio 25, 2026 at 2:14 pm
  • Dimensioni proprietà: 52 m²
  • Camera da letto: 1
  • Stanze: 3
  • Bagno: 1
  • Tipologia: Appartamento

Planimetria

image

Descrizione:

Classe energetica

  • Classe energetica: G
  • A+
  • A
  • B
  • C
  • D
  • E
  • F
  • | Classe energetica G
    G
  • H

Confronta Strutture

Confronta
BeniStabiliGroup
  • BeniStabiliGroup
Beni Stabili

GRATIS
VISUALIZZA